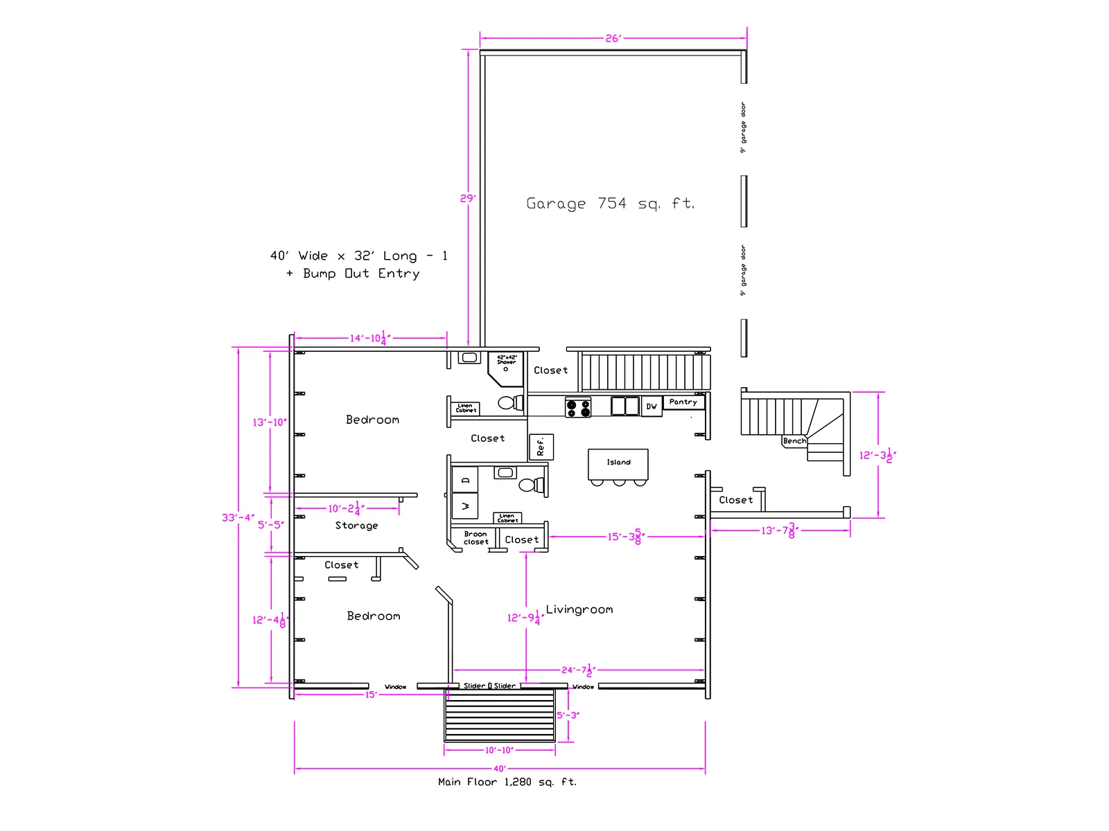
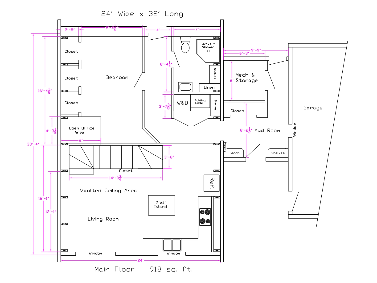
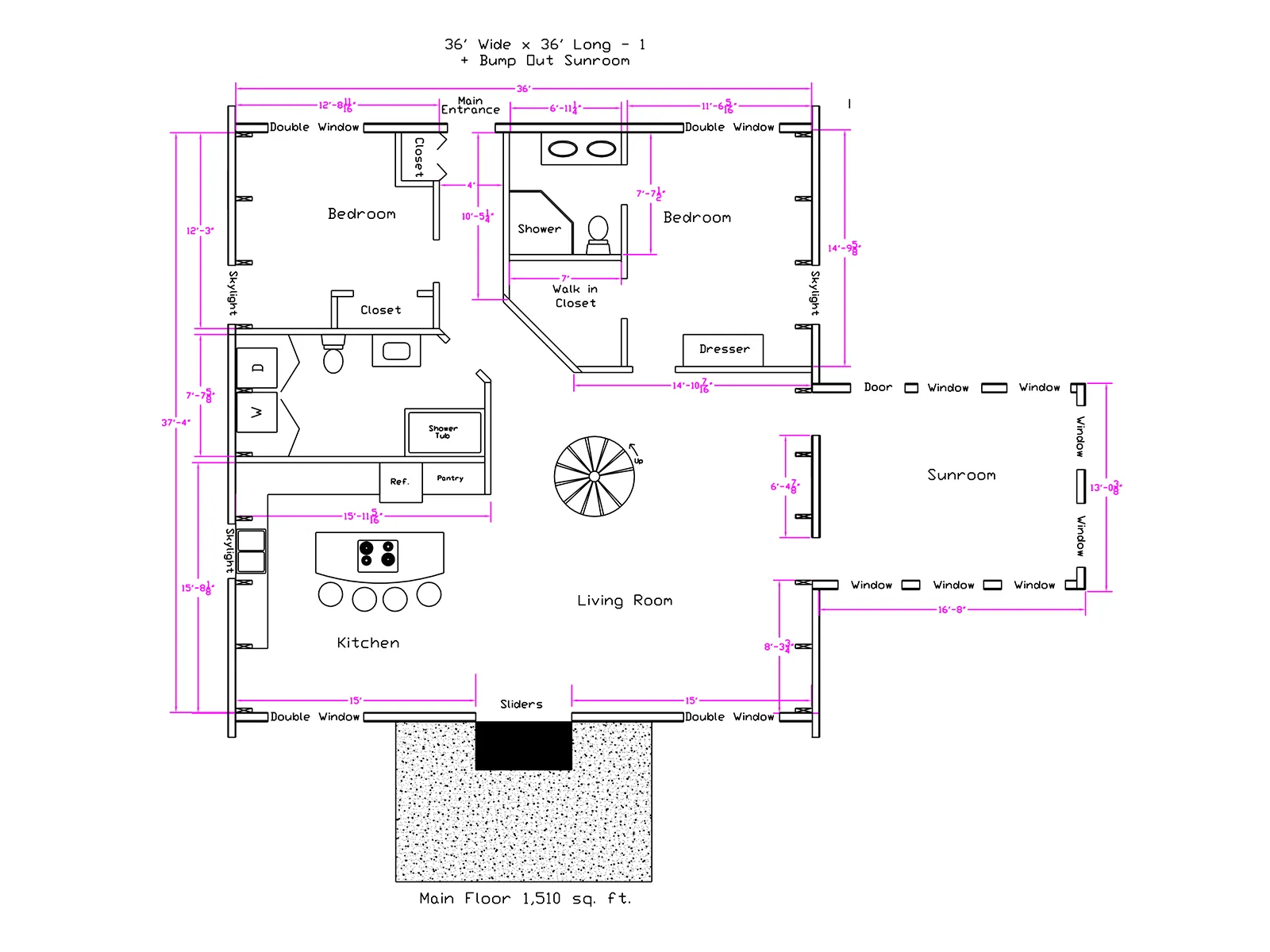
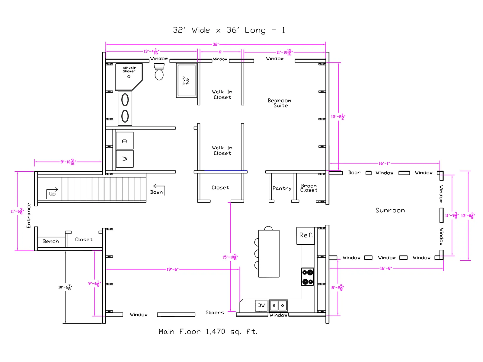
Floor Plan Concepts
First and foremost, the unique versatility of these rugged free-standing Quonset, Gothic and Tudor structures affords unlimited interior floor plan possibilities.
They represent the epitome in the concept of open floor plan layouts. In addition, lofts, full and partial second floors, and full and partial vaulted ceiling areas
provide additional design features for clients to work with in the process of creating their own personal design touch. Since the structural integrity of the building
shell requires no cross member support framing, loft and second floor decks can be assembled during the initial construction phase or at any time in the future.
The floor plans in this section are a small sample of the unlimited possibilities of layouts with the free-standing Quonset, Gothic and Tudor building shell system.
These basic drawings illustrate concepts for first floor layouts and not for loft and full second floor areas. More complete individual interior layouts are developed
hand in hand with each client to create exactly what the owner desires to make every building provide them with the comfort, efficiency and performance they require,
no matter if the building will be used for residential, professional, commercial or other purposes.
Arches are spaced 4’ apart and are 12” deep. The areas between the arches provide excellent space for locating closets, cabinets, shelving and other storage units,
with examples of these in the Storage Photo Gallery.
Click on any of the images below for a more detailed view or contact us if you have any questions.