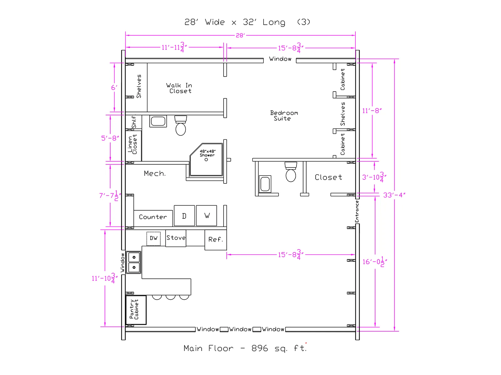
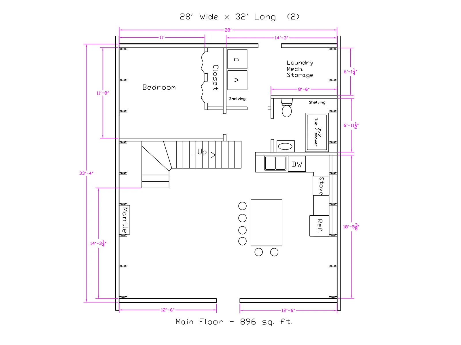
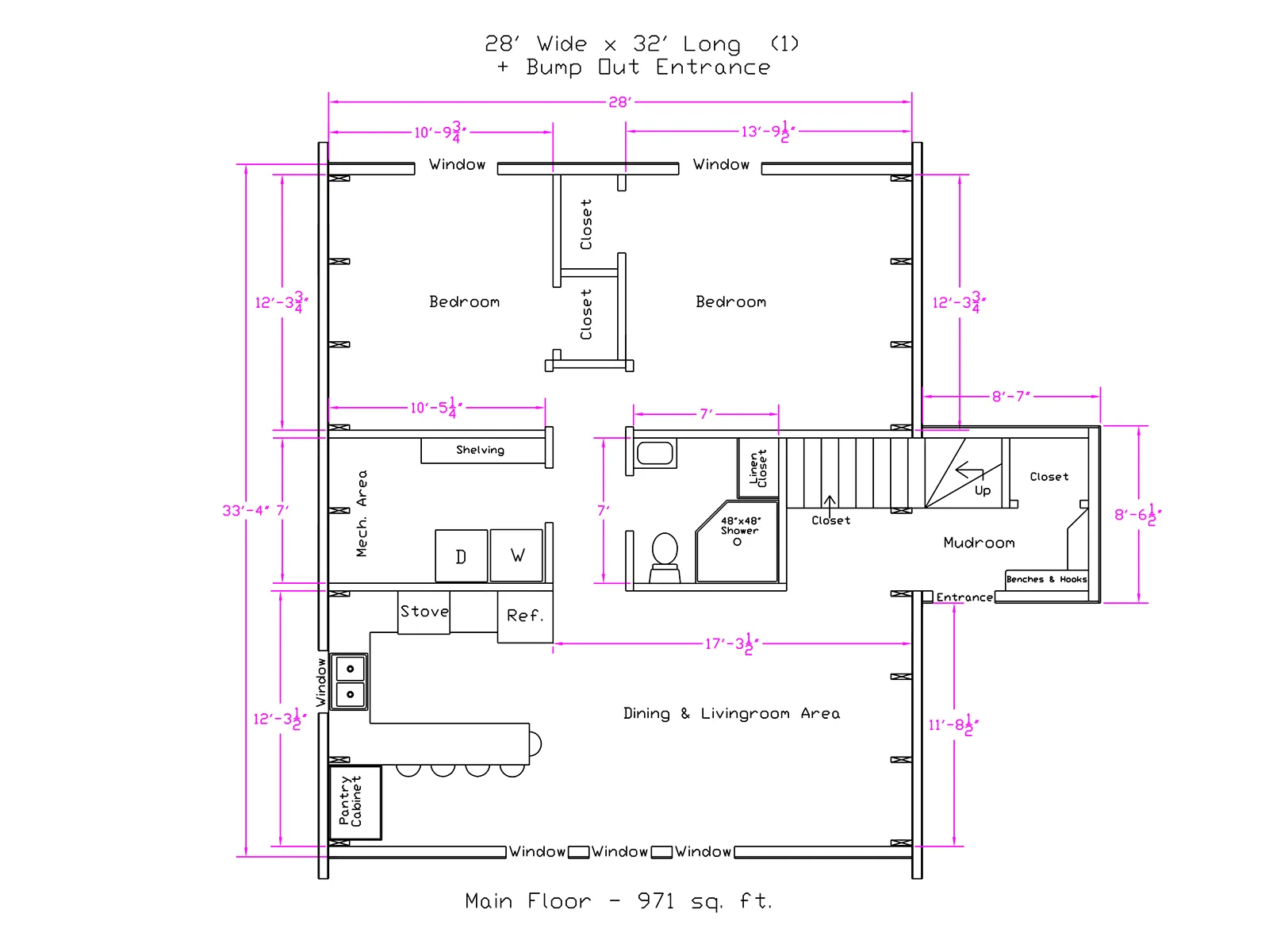
28ft Wide Gothic
Floor Plans
Explore innovative floor plans that optimize space while offering a modern design aesthetic. Discover how inspiring solutions and cutting-edge
materials are shaping the future of construction.
Click on any of the images below for a more detailed view or contact us if you have any questions.